Casa indipendente in vendita a Calvenzano - Rif. 492CA
Foto immobile/Planimetrie
Caratteristiche immobile
Camere: 4
Bagni: 3
Riscaldamento: Autonomo
Tipo Riscaldamento: Radiatori
212 MQ comm.
Stato immobile: Ottimo
Giardino: Privato
Giardino MQ: 170
Posto auto: 2 posti
Garage: Doppio
Classe ener.: D
Consumo ipe: 161.19 kwh/mq
Locali: 5
Mansarda: SI
Su più livelli
Totale piani: 2
Tot. unità presenti: 1
Cucina: Abitabile
Spese condominiali: assenti
TV Sat
Internet
Sistema di allarme
Impianto di climatizzazione
Pannello fotovoltaico
Caldaia a condensazione
Porta Blindata
Cancello Elettrico
VideoCitofono
Presentazione
Eleganza, Spazio e Tecnologia: La Tua Nuova Casa a Calvenzano.
Sogni una casa che unisca il fascino della tradizione alla modernità più avanzata? A Calvenzano, ti presentiamo una magnifica casa indipendente, finemente e completamente restaurata, che ti lascerà senza fiato. Questa dimora di 212 mq, distribuita su due piani più un piano mansardato, è la soluzione ideale per chi cerca ampi spazi, comfort e un'attenzione particolare all'efficienza energetica.
Spazi Interni Pensati per Ogni Esigenza
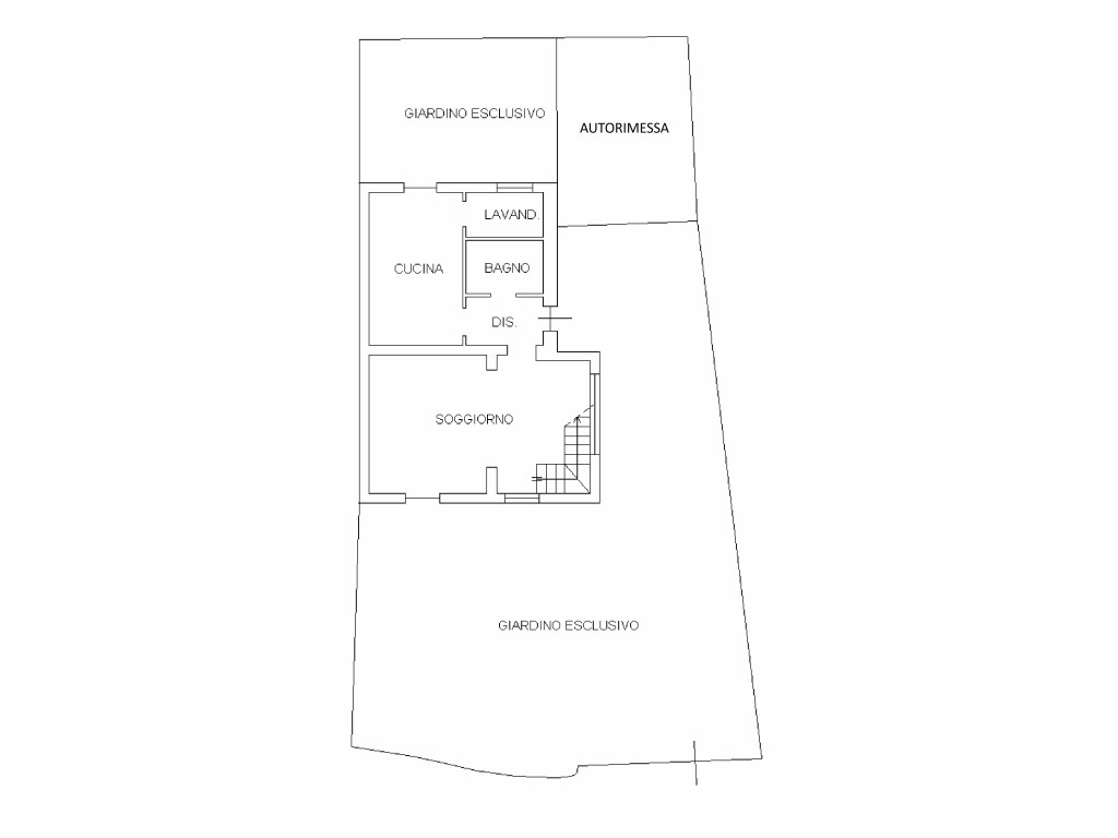
Varcando la soglia, sarai accolto da un luminoso soggiorno che invita al relax. La cucina abitabile è perfetta per chi ama cucinare e condividere momenti conviviali. A completare il piano terra, un moderno bagno con doccia doppia e una pratica lavanderia.
Salendo al primo piano, scoprirai la camera matrimoniale, una seconda spaziosa camera e uno studio, ideale per il lavoro da casa o per i tuoi hobby. Il bagno principale, un vero gioiello di design, è rivestito in Bisazza e offre una doppia doccia per il massimo del comfort.
Il piano mansardato, caratterizzato da suggestive travi a vista, ospita altre due camere e un ulteriore bagno, garantendo privacy e spazio per tutta la famiglia o per accogliere ospiti.
Comfort e Tecnologia al Top
Questa proprietà non è solo bella, ma anche all'avanguardia. Oltre ad essere dotata di un'efficiente caldaia a condensazione, vanta pannelli fotovoltaici da 5,9 kW con accumulatore, garantendo un notevole risparmio sulle bollette energetiche, contribuendo al contempo alla sostenibilità ambientale. La tua sicurezza è garantita da un sistema di allarme e videosorveglianza perimetrale, mentre il videocitofono con interfono su ogni piano offre praticità e controllo. Il sistema di climatizzazione nella zona giorno e notte assicura il clima ideale in ogni stagione.
Un'Oasi di Tranquillità all'Aperto
Completa la proprietà un'area esterna privata di 170 mq, un vero plus per goderti momenti all'aria aperta, organizzare cene con amici o far giocare i bambini in totale sicurezza. Un comodo box doppio risolve ogni problema di parcheggio.
Non perdere l'opportunità di vivere in una casa che unisce lusso, comfort e sostenibilità. Contattaci per maggiori informazioni e per prenotare una visita!
Sogni una casa che unisca il fascino della tradizione alla modernità più avanzata? A Calvenzano, ti presentiamo una magnifica casa indipendente, finemente e completamente restaurata, che ti lascerà senza fiato. Questa dimora di 212 mq, distribuita su due piani più un piano mansardato, è la soluzione ideale per chi cerca ampi spazi, comfort e un'attenzione particolare all'efficienza energetica.
Spazi Interni Pensati per Ogni Esigenza
Varcando la soglia, sarai accolto da un luminoso soggiorno che invita al relax. La cucina abitabile è perfetta per chi ama cucinare e condividere momenti conviviali. A completare il piano terra, un moderno bagno con doccia doppia e una pratica lavanderia.
Salendo al primo piano, scoprirai la camera matrimoniale, una seconda spaziosa camera e uno studio, ideale per il lavoro da casa o per i tuoi hobby. Il bagno principale, un vero gioiello di design, è rivestito in Bisazza e offre una doppia doccia per il massimo del comfort.
Il piano mansardato, caratterizzato da suggestive travi a vista, ospita altre due camere e un ulteriore bagno, garantendo privacy e spazio per tutta la famiglia o per accogliere ospiti.
Comfort e Tecnologia al Top
Questa proprietà non è solo bella, ma anche all'avanguardia. Oltre ad essere dotata di un'efficiente caldaia a condensazione, vanta pannelli fotovoltaici da 5,9 kW con accumulatore, garantendo un notevole risparmio sulle bollette energetiche, contribuendo al contempo alla sostenibilità ambientale. La tua sicurezza è garantita da un sistema di allarme e videosorveglianza perimetrale, mentre il videocitofono con interfono su ogni piano offre praticità e controllo. Il sistema di climatizzazione nella zona giorno e notte assicura il clima ideale in ogni stagione.
Un'Oasi di Tranquillità all'Aperto
Completa la proprietà un'area esterna privata di 170 mq, un vero plus per goderti momenti all'aria aperta, organizzare cene con amici o far giocare i bambini in totale sicurezza. Un comodo box doppio risolve ogni problema di parcheggio.
Non perdere l'opportunità di vivere in una casa che unisce lusso, comfort e sostenibilità. Contattaci per maggiori informazioni e per prenotare una visita!
Dove si trova?
Contatto e richiesta informazioni
Invia una richiesta all'agenzia
Agente di riferimento
492CA
Autorizzo il trattamento dei miei dati personali in base art. 13 del reg. eu 679/2016